一、主要技术数据
1、阀体
形 式:直通铸造或锻造阀
公称通径:15-300mm
公称压力:PN1.6、4.0、6.4Mpa、31.5MPa(定制)
连接形式:法兰式按JB78-59 JB79-59
材 料:HT200、ZG25I、ZG1Cr 18Ni9、WCB、ZG0Cr17Ni 12Mo2、衬制聚四氟乙烯
上阀盖:常温型:-20-+120℃、散热型:+120℃-+450℃
压盖形式:螺栓压紧式
填 料:V型聚四氟乙烯填料、含浸聚四氟乙烯填料、石棉纺织填料、耐高温碳纤维填料
2、阀内组件
阀芯形式:O型阀芯
流量特性:快开型
材 料:1Cr18Ni9Ti、Oor17Ni 12Mo2衬聚四氟乙烯
密封面材料:聚四氟乙烯、硬密封
二、规格参数
| 公称通径DN |
25 |
32 |
40 |
50 |
65 |
80 |
100 |
125 |
150 |
200 |
250 |
300 |
| 流量系数(Kv) |
25 |
40 |
63 |
100 |
160 |
250 |
350 |
680 |
990 |
1600 |
2500 |
4000 |
| 动作范围 |
0-90° |
| 允许压差△P |
小于公称压力(1.6Mpa) |
| 泄漏量Q |
按API598标准测试 无泄漏 |
| 环境温度℃ |
-20~60℃ |
| 基本误差 |
±2% |
| 回差 |
±2% |
| 死区 |
1% |
| 可调范围 |
250:1 |
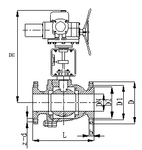
三、安装尺寸
ZAJQ941F/H型电动O球阀外形及连接尺寸

| 公称压力PN |
公称通径DN |
尺寸(mm) |
| L |
D |
D1 |
D2 |
H |
b |
z-d |
| 1.6MPa |
50 |
203 |
165 |
125 |
100 |
420 |
16 |
4-18 |
| 65 |
222 |
185 |
145 |
120 |
480 |
18 |
4-18 |
| 80 |
241 |
200 |
160 |
135 |
560 |
20 |
8-18 |
| 100 |
305 |
220 |
180 |
155 |
590 |
20 |
8-18 |
| 125 |
356 |
250 |
210 |
185 |
650 |
22 |
8-18 |
| 150 |
394 |
285 |
240 |
210 |
740 |
24 |
8-23 |
| 200 |
457 |
340 |
295 |
265 |
810 |
26 |
12-23 |
| 2.5MPa |
50 |
216 |
365 |
125 |
100 |
420 |
20 |
4-18 |
| 65 |
241 |
185 |
145 |
120 |
480 |
22 |
8-18 |
| 80 |
283 |
200 |
160 |
135 |
560 |
22 |
8-18 |
| 100 |
305 |
230 |
190 |
160 |
590 |
24 |
8-23 |
| 125 |
381 |
270 |
220 |
188 |
650 |
28 |
8-25 |
| 150 |
403 |
300 |
250 |
218 |
740 |
30 |
8-25 |
| 200 |
502 |
360 |
310 |
278 |
810 |
34 |
12-25 |
| 4.0MPa |
50 |
216 |
165 |
125 |
100 |
420 |
20 |
4-18 |
| 65 |
241 |
185 |
145 |
120 |
480 |
22 |
8-18 |
| 80 |
283 |
200 |
160 |
135 |
560 |
22 |
8-18 |
| 100 |
305 |
235 |
190 |
160 |
590 |
24 |
8-23 |
| 125 |
381 |
270 |
220 |
188 |
650 |
28 |
8-25 |
| 150 |
403 |
300 |
250 |
218 |
740 |
30 |
8-25 |
| 6.4MPa |
50 |
292 |
180 |
135 |
105 |
470 |
26 |
4-23 |
| 65 |
330 |
205 |
160 |
130 |
530 |
28 |
8-23 |
| 80 |
356 |
215 |
170 |
140 |
580 |
30 |
8-23 |
| 100 |
406 |
250 |
200 |
168 |
630 |
32 |
8-25 |
| 125 |
440 |
295 |
240 |
202 |
710 |
36 |
8-30 |
| 150 |
495 |
345 |
280 |
240 |
760 |
38 |
8-34 |
|