一、主要技 术数据
1、阀体
形 式:直通铸造或锻造阀、台 湾三片式球阀,超短型对夹式球阀
公称通径 :15-300mm
公称压力:PN1.6、4.0、6.4 、31.5MPa(定制)
连接形式:法兰式按 JB78-59、JB79-59
材 料: HT200、ZG25I、ZG1Cr 18Ni9、WCB、 ZG0Cr17Ni 12Mo2衬制聚四氟乙烯
上阀盖: 常温型:-20-+120℃、散热型:+120℃-+450℃
压盖形式:螺栓压紧式
填 料:V型聚四氟乙烯填料、含浸聚 四氟乙烯填料、石棉纺织填料、耐高温碳纤维填料
2、阀内组件
阀芯形式:O型阀芯
流量特性:快开型
材 料:1Cr18Ni9Ti 、 Oor17Ni 12Mo2衬聚四氟乙烯
密封面材料: 聚四氟乙烯、硬密封
3、流量特性表
| 公称通径(DN) |
不同开度角下的Kv值 |
| 开度 |
10° |
20° |
30° |
40° |
50° |
60° |
70° |
80° |
90° |
| 50 |
2 |
4 |
9 |
17 |
32 |
60 |
97 |
151 |
215 |
| 80 |
6 |
11 |
22 |
44 |
83 |
155 |
250 |
389 |
550 |
| 100 |
9 |
18 |
35 |
71 |
133 |
248 |
398 |
620 |
890 |
| 150 |
20 |
40 |
80 |
160 |
300 |
560 |
900 |
1400 |
2000 |
| 200 |
36 |
72 |
143 |
286 |
737 |
1002 |
1611 |
2506 |
3580 |
| 250 |
57 |
113 |
226 |
453 |
848 |
1582 |
2543 |
3955 |
5650 |
| 300 |
81 |
163 |
325 |
651 |
1220 |
2278 |
3661 |
5695 |
8100 |
| |
4、规格参数
| 公称通径DN |
15 |
20 |
25 |
32 |
40 |
50 |
65 |
80 |
100 |
125 |
150 |
200 |
250 |
300 |
| 流量系数(Kv) |
20 |
38 |
72 |
110 |
170 |
215 |
380 |
550 |
890 |
1400 |
2000 |
3580 |
5650 |
8100 |
| 可调动作范围 |
0-90° |
| 允许压差△P |
小于公称压力(1.6MPa) |
| 泄漏量Q |
按API598标准测试,无泄漏 |
| 环境温度℃ |
-20~60℃ |
| 基本误差 |
±2.5% |
| 回差 |
±2.5% |
| 死区 |
1% |
| 可调范围 |
250:1 |
350: 1 |
注:若阀内介质比较 特殊,如粘度高或压力差很大则应选力矩(N.M) 大的执行器。
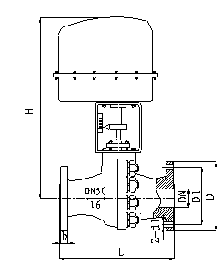
二、外形尺寸
ZRJQ941型电动O型 球阀外形及连接尺寸

单位: mm
| 公称通径DN |
L |
D |
D1 |
b |
Z-d1 |
| 压力 |
1.6/2.5/4.0 |
1.6/2.5/4.0 |
1.6/2.5/4.0 |
1.6/2.5/4.0 |
1.6/2.5/4.0 |
| 15 |
130/130/140 |
95 |
65 |
14/16/16 |
4-14 |
| 20 |
140/140/150 |
105 |
75 |
14/16/16 |
4-14 |
| 25 |
150/150/165 |
115 |
85 |
14/16/16 |
4-14 |
| 32 |
165/165/180 |
135 |
100 |
16/18/18 |
4-18 |
| 40 |
180/180/200 |
145 |
110 |
16/18/18 |
4-18 |
| 50 |
200/200/220 |
160 |
125 |
16/20/20 |
4-18 |
| 65 |
220/220/250 |
180 |
145 |
18/22/22 |
4-18/8-18/8- 18 |
| 80 |
250/250/280 |
195 |
160 |
20/22/22 |
8-18 |
| 100 |
280/280/320 |
215/230/230 |
180/190/190 |
20/24/24 |
8-18/8-23/8- 23 |
| 125 |
320/320/360 |
245/270/270 |
210/220/220 |
24/28/30 |
8-23/8-25/8- 25 |
| 150 |
360/360/400 |
280/300/300 |
240/250/250 |
24/28/30 |
8-23/8-25/8- 25 |
| 200 |
400/400/550 |
335/360/375 |
295/310/320 |
26/34/38 |
12-23/12-25/12- 30 |
| 250 |
630 750 |
405/425/450 |
355/370/382 |
|
12-23/12-29/12- 32 |
| 300 |
750 870 |
460/485/515 |
410/430/450 |
|
12-23/16-29/16- 32 |
|