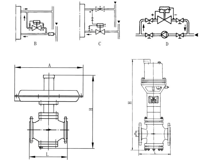
一、产品概述
ZZC和ZZV自力式差(微)压调节阀是一种不需要外加能源的执行器产品。可用于公称压力PN01,PN10。差(微)压均可分段调节。从50mm.W.C至0.1MPa。其用途十分广泛,可用于工业燃烧炉系统,控制两种物料,如煤气、空气流量配比,以达理想燃烧。用于氢冷发电机组密封油系统,控制密封油与氢气间压力差,以确保可靠密封。当差压阀的低压端通大气即为微压阀(差压阀负压,端压,力为零)。
二、产品特点
·无需停止生产即可进行设定值的调整;
·无填料,阀杆上、下活动时不存在磨擦,上密封绝对可靠;
·执行机构敏感元件极为灵敏,极微小的压力变化会被感测出来;
·阀体为四通形式,因而K、B型可通用一种阀体。

三、主要的技术参数
| 公称通径 DN(mm) |
20 |
25 |
32 |
40 |
50 |
65 |
80 |
100 |
| 额定流量 系数 Kv |
ZZCP/ZZVP |
8 |
11 |
20 |
32 |
50 |
80 |
100 |
160 |
| ZZCN |
|
|
|
|
53 |
83 |
|
|
| 额定行程 (mm) |
6 |
8 |
10 |
15 |
20 |
| 公称压力 PN(MPa) |
0.10 1.0 |
| 差压调节范围 (kPa) |
0.5 ~ 5.5 5 ~ 10 9 ~ 14 13 ~ 19 18 ~ 24 22 ~ 28 26 ~ 33 31 ~ 38 36 ~ 44 42 ~ 51 49 ~ 58 56 ~ 66 64 ~ 78 76 ~ 90 8 ~ 100 |
| 介质温度 ( ℃ ) |
≤ 80 |
| 调节精度 ( % ) |
≤ 10 |
| 允许泄漏 量 (l/h) |
ZZCP/ZZVP |
10 -4 X 阀额定容量 ( Ⅳ 级 ) |
| ZZCN |
5X10 -3 X 阀额定容量 ( II 级 ) |
注:1.ZZCP/ZZVP公称压力为0.10MPa,ZZCN为1.0MPa
2.ZZCN差压调节范围为36~44…88~100kPa

四、外形尺寸与重量
单位:mm
| DN |
20 |
25 |
32 |
40 |
50 |
65 |
80 |
100 |
| A |
308 |
394 |
308 |
394 |
308 |
394 |
394 |
394 |
| H |
ZZCP/ZZVP |
376 |
465 |
365 |
445 |
445 |
490 |
490 |
510 |
| ZZCN |
|
|
|
|
536 |
536 |
|
|
| L |
ZZCP/ZZVP |
150 |
160 |
180 |
200 |
230 |
290 |
310 |
350 |
| ZZCN |
|
|
|
|
222 |
222 |
|
|
| 重量 G(Kg) |
12 |
13 |
15 |
17 |
20 |
28 |
38 |
43 |
| 导压管螺纹接头 |
M16X1.5 |
连接标准
泄氮装置(自力式微压调节阀) |