一、产品概述
ZZY型自力式压力调节阀无需外加能源,利用被调介质自身能量为动力源,引入执行机构控制阀芯位置,改变两端的压差和流量,使阀前(或阀后)压力稳定。具有动作灵敏,密封性好,压力设定点波动小等优点,广泛应用于气体、液体及蒸汽介质减压稳压或泄压稳压的自动控制
二、主要技术参数
| 公称通径DN(mm) |
20 |
25 |
32 |
40 |
50 |
65 |
80 |
100 |
125 |
150 |
200 |
250 |
300 |
| 额定流量系数(KV) |
7 |
11 |
20 |
30 |
48 |
75 |
120 |
190 |
300 |
480 |
760 |
1100 |
1750 |
| 额定行程(mm) |
8 |
10 |
14 |
20 |
25 |
40 |
50 |
60 |
70 |
| 公称压力PN(MPa) |
1.6、4.0、6.4 |
| 压力调节范围(Kpa) |
15~50、 40~80、 60~100、 80~140、 120~180、 160~220、 200~260、 240~300、 280~350、 330~400、 380~450、 430~500、 480~560、 540~620、 600~700、 680~800、 780~900、 880~1000、 600~1500、 1000~2500 |
| 流量特性 |
快开 |
| 调节精度(%) |
±5 |
| 使用温度(℃) |
≤350 |
| 允许 泄漏量 |
硬密封(l/h) |
单座:≤10-4 阀额定容量(Ⅳ 级);双座、套筒≤5×10-3 阀额定容量(Ⅱ级) |
| 软密封(ml/h) |
0.15 |
0.30 |
0.45 |
0.60 |
0.90 |
1.7 |
4.0 |
6.75 |
11.10 |
11.60 |
| 减压比 |
最大 |
10 |
| 最小 |
1.25 |
压力调节范围确定
压力调节范围分段,见主要参数及性能指标表,控制压力应尽量选取在调节范围的中间值附近
三、阀后压力调节阀,其阀前压力与阀后压力的关系
自力式调节阀本身是一个调节系统,阀本身又有一定的压降要求,对阀后压力调节阀(B型),为保证阀后压力在一定范围内,其阀前压力必须达到一定值,其要求可参见下表:
| 阀前压力 Kpa |
30 |
50 |
100 |
150 |
200 |
250 |
300 |
350 |
400 |
450 |
500 |
550 |
600 |
| 阀后压力 KPa |
15~ 24 |
15~ 40 |
15~ 80 |
15~ 120 |
20~ 160 |
25~ 200 |
30~ 240 |
35~ 280 |
40~ 320 |
45~ 360 |
50~ 400 |
55~ 440 |
60~ 480 |
| 阀前压力 Kpa |
650 |
700 |
750 |
800 |
850 |
900 |
950 |
1000 |
1250 |
1500 |
2000 |
2500 |
3000 |
| 阀后压力 KPa |
65~ 520 |
170~ 560 |
75~ 600 |
80~ 640 |
85~ 680 |
90~ 720 |
95~ 760 |
100~ 800 |
125~ 1000 |
150~ 1200 |
200~ 1600 |
250~ 2000 |
300~ 2400 |
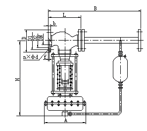
四、外形尺寸及重量

单位:mm
| 公称通径DN |
20 |
25 |
32 |
40 |
50 |
65 |
80 |
100 |
125 |
150 |
200 |
250 |
300 |
| 法兰接管尺寸B |
383 |
512 |
603 |
862 |
1023 |
1380 |
1800 |
2000 |
2200 |
| 法兰端面距L |
150 |
160 |
180 |
200 |
230 |
290 |
310 |
350 |
400 |
480 |
600 |
730 |
850 |
| 压力调节范围KPa |
15-140 |
H |
475 |
520 |
540 |
710 |
780 |
840 |
880 |
915 |
940 |
1000 |
| A |
280 |
308 |
| 130-300 |
H |
455 |
500 |
520 |
690 |
760 |
800 |
870 |
880 |
900 |
950 |
| A |
230 |
| 280-500 |
H |
450 |
490 |
510 |
680 |
750 |
790 |
860 |
870 |
890 |
940 |
| A |
176 |
194 |
280 |
| 480-1000 |
H |
445 |
480 |
670 |
740 |
780 |
850 |
860 |
880 |
930 |
| A |
176 |
194 |
280 |
| 600-1500 |
H |
445 |
570 |
600 |
820 |
890 |
950 |
1000 |
1100 |
1200 |
| A |
85 |
96 |
| 1000-250 |
H |
445 |
570 |
600 |
820 |
890 |
950 |
1000 |
1100 |
1200 |
| A |
85 |
96 |
| 重量Kg |
26 |
37 |
42 |
72 |
90 |
114 |
130 |
144 |
180 |
200 |
250 |
| 导压管接头螺纹 |
M16×1.5 |
五、主要零件材料
| 零件名称 |
材料 |
| 阀 体 |
ZG230-450、ZG1Cr18Ni9Ti、ZGCr18Ni12Mo2Ti |
| 阀 芯 |
1Cr18Ni9Ti、Cr18Ni12Mo2Ti |
| 阀 座 |
1Cr18Ni9Ti、Cr18Ni12Mo2Ti |
| 阀 杆 |
1Cr18Ni9Ti、Cr18Ni12Mo2Ti |
| 橡胶膜片 |
丁晴、乙炳、氟、耐油橡胶 |
| 膜 盖 |
A3、A4钢涂四氟乙烯 |
| 填 料 |
聚四氟乙烯、柔性石墨 |
|