ZA(R)JQ电动O型调节球阀概述
ZA(R)JQ电动O型调节球阀采用一体化结构,与DTR电动执行机构或GT气缸相配,有输入控制信号(4~20mADC或1-5VDC)及单相电源即可控制运转,具有功能强、体积小、轻便宜人、性能可靠、配套简单、流通能力大、特别适合于介质是粘稠,含颗粒,纤维性质的场合。目前该阀广泛应用于食品、环保、轻工、石油、造纸、化工、教学和科研设备、电力等行业的工业自动控制系统中。
ZA(R)JQ电动O型调节球阀技术参数及性能:
| 阀体型式: |
直通铸造阀 |
| 公称通径: |
DN25 、32 、40 、50 、 |
| |
65 、80 、100 、200 、250、300 |
| 公称压力: |
PN 1.6、2.5、4.0、6.4Mpa |
| |
ANSI 150、300Lb JIS 10K、20K、30K |
| 连接方式: |
法兰 FF、RF、RTJ、等 |
| 焊接: |
SW、BW |
| 法 兰 距: |
符合IEC 534 |
| 阀盖形式: |
一体式 |
| 填 料: |
V型聚四氟乙烯、柔性石墨填料等 |
| 密 封 垫: |
金属夹石墨密封垫 |
| 执行机构: |
气动:气动活塞式执行机构 |
| |
电动:3810L系列 、PSL系列 |
阀内部件
| 阀芯型式: |
O型球体阀芯 |
| 流量特性: |
近似快开型 |
| 内件材质: |
标准材质组合及使用温度、压力范围请参阅附表 |
| 泄 漏 量: |
小于额定KV 0.01% |
表1.可提供的用户选择
| 阀体 |
型式 |
直通 |
阀盖 |
一体式 |
| 材质 |
WCB、CF8、CF8M等 |
| 阀芯 |
特性 |
近似快开型 |
填料 |
“V”型PTFE、 柔性石墨 |
| 材质 |
304、304+STL/PTFE、316、316+STL/PTFE |
| 执行器 |
气动活塞式执行机构 |
| PSQ系列、DTR、3810系列角行程执行机构。 |
| 定位器 |
电气阀门定位器、智能型数字定位器 |
| 附件 |
电磁阀、阀位反馈器、手操机构、保位阀、空气过滤减压器等 |
具有理想流量特性表
| 公称通径(DN) |
不同开度角下的Kv值 |
| 开度 |
10º |
20º |
30º |
40º |
50º |
60º |
70º |
80º |
90º |
| 50 |
2 |
4 |
9 |
17 |
32 |
60 |
97 |
151 |
215 |
| 80 |
6 |
11 |
22 |
44 |
83 |
155 |
250 |
389 |
550 |
| 100 |
9 |
18 |
35 |
71 |
133 |
248 |
398 |
620 |
890 |
| 150 |
20 |
40 |
8/0 |
160 |
300 |
560 |
900 |
1400 |
2000 |
| 200 |
36 |
72 |
143 |
286 |
737 |
1002 |
1611 |
2506 |
3580 |
| 250 |
57 |
113 |
226 |
453 |
848 |
1582 |
2543 |
3955 |
5650 |
| 300 |
81 |
163 |
325 |
651 |
1220 |
2278 |
3661 |
5695 |
8100 |
电动调节球阀规格参数
| 公称通径DN |
15 |
20 |
25 |
32 |
40 |
50 |
65 |
80 |
100 |
125 |
150 |
200 |
250 |
300 |
| 流量系数(Kv) |
20 |
38 |
72 |
110 |
170 |
215 |
380 |
550 |
890 |
1400 |
2000 |
3580 |
5650 |
8100 |
| 可调动作范围 |
0-90º |
| 可调范围 |
250:1 |
350:1 |
| 配用执行机构 |
PSQ101, 381RSA-05DTR-05 DTR-10 |
PSQ201, DTR-20381RSC-30 |
DTR-40381RSC-50 |
PSQ701DTR-60 |
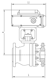
ZJQ41型电动球阀外形尺寸
 |
| 公称通径DN |
L |
H |
L1 |
|
| 1.6/2.5/4.0 |
| 15 |
130/130/130 |
275 |
157 |
|
| 20 |
140/140/140 |
280 |
157 |
|
| 25 |
150/150/150 |
287 |
157 |
|
| 32 |
165/165/180 |
384 |
208 |
|
| 40 |
180/180/200 |
312 |
208 |
|
| 50 |
200/200/220 |
325 |
208 |
|
| 65 |
220/220/250 |
335 |
256 |
|
| 80 |
250/250/280 |
365 |
256 |
|
| 100 |
280/280/320 |
400 |
256 |
|
| 125 |
320/320/400 |
420 |
256 |
|
| 150 |
360/360/400 |
440 |
256 |
|
| 200 |
400/400/550 |
470 |
256 |
|
| 250 |
630 750 |
545 |
380 |
|
| 300 |
750 870 |
580 |
380 |
|
ZJQ971超短型电动对夹式球阀外形
尺寸注:表中数据XX/XX表示压力:1.6MPa/2.5MPa
|

|
| 公称通径DN |
L |
H |
L1 |
| 15 |
35 |
275 |
157 |
| 20 |
38 |
280 |
157 |
| 25 |
42 |
287 |
157 |
| 32 |
50 |
297 |
208 |
| 40 |
60 |
312 |
208 |
| 50 |
70 |
325 |
256 |
| 65 |
95 |
335 |
256 |
| 80 |
118 |
365 |
256 |
| 100 |
140 |
400 |
256 |
| 125 |
175/195 |
420 |
256 |
| 150 |
210/260 |
440 |
256 |
ZJQ11型三片式电动丝扣式球阀外形尺寸
|

|
| 公称通径DN |
G |
L |
H |
L1 |
| 15 |
1/2” |
75 |
275 |
157 |
| 20 |
3/4” |
80 |
280 |
157 |
| 25 |
1 |
90 |
287 |
157 |
| 32 |
1 1/4” |
40 |
297 |
208 |
| 40 |
1 1/2” |
120 |
312 |
208 |
| 50 |
2 |
140 |
325 |
208 |
|