● 概述
V71241/2/3型精小型电动双导向单座/套筒调节阀,配用德国进口PS系列和日本工装3610系列直行程电动执行机构,无需配伺服放大器,有输入控制信号(4—2mADC或1—5VDC)及单相电源既可控制运转,实现对压力、流量、温度、液位等参数的调节,具有体积小、重量轻、连线简单、泄漏量少的优点,但抗不平衡力较小,故阀门前后的工作压差不宜过高。它们能广泛应用于电力、冶金、石油、化工、轻工、环保等行业过程自动控制系统中。
● 技术参数和性能
阀体:形 式:直通单座/套筒铸造球型阀
公称通径:DN20—200mm
公称压力:PN1.6 4.0 6.4Mpa
连接形式:JB78—59 JB JB79—59
G3/4接管方式:按G3/4管螺纹形式
材 料:HT200 ZG270—500 ZG1Gr18Ni9Ti
ZGOCr18Ni12M02Ti
上阀盖:常 温 型:-40~+200℃
散 热 型: +200℃~+450℃
压盖形式:螺栓压紧式
填 料:V型聚四氟乙烯,柔性石墨,石棉编织填料
阀内组件:阀芯形式:上导向单座柱塞式阀芯,
或上导向单座套筒柱塞式阀芯,
流量特性:等百分比特性,直线特性和快开特性
材 料:1Cr18NI9Ti 0Cr18Ni12MO2Ti

● V71241型电动单座调节阀规格参数表
|
公称通径DN
|
20
|
25
|
32
|
40
|
50
|
65
|
80
|
100
|
125
|
150
|
200
|
250
|
300
|
|
阀座直径dn(mm)
|
20
|
25
|
32
|
40
|
50
|
65
|
80
|
100
|
125
|
150
|
200
|
250
|
300
|
|
额定流量系数Kv
|
5.0
|
8
|
12
|
20
|
32
|
50
|
80
|
120
|
200
|
280
|
450
|
|
|
|
行程mm
|
10
|
10
|
25
|
40
|
60
|
|
|
|
允许压差MPa
|
4.0
|
3.0
|
2.0
|
1.2
|
1.0
|
1.4
|
1.0
|
0.7
|
0.6
|
0.5
|
0.3
|
|
|
|
基本误差%
|
±2.5
|
|
回差%
|
2.5
|
|
死区%
|
1.0
|
|
始终点偏差%
|
±2.5
|
|
额定行程偏差%
|
2.5
|
|
允许泄漏量Q
|
Kv值的0.01% 按GB4213—84标准
|
|
可调范围
|
30:1
|
|
配电动执行器型号
|
PSL
|
PSL201
|
PSL202
|
PSL204
|
PSL208
|
PSL312
|
PSL325
|
|
381L
|
SA-08
|
381LSA—30
|
381LSB—30
|
381LSB—50
|
381LSC—65
|
381LSC—160
|
|
公称压力
介质温度
阀体材料
|
1.6MPa
|
常温-20℃~+200℃ 铸铁HT200
|
|
4.0MPa
|
常温-40℃~+200℃ 铸钢ZG25 铸不锈钢ZG1Cr18Ni9Ti
|
|
中温-40℃~+200℃ 铸钢ZG25 铸不锈钢ZG1Cr18Ni9Ti
|
|
6.4MPa
|
常温-40℃~+200℃ 铸钢ZG25 铸不锈钢ZG1Cr18Ni9Ti
|
|
中温-40℃~+200℃ 铸钢ZG25 铸不锈钢ZG1Cr18Ni9Ti
|
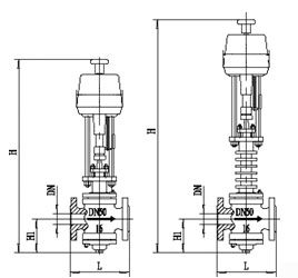
● 安装尺寸和重量

|
公称通径DN(mm)
|
L(mm)
|
H1
mm
|
H(mm)
|
R
mm
|
|
|
PN(MPa)
|
常温
|
中温
|
PN1.6
MPa
|
PN4.0 6.4MPa
|
|
1.6
|
4.0
|
6.4
|
常温
|
中温
|
|
25
|
185
|
190
|
200
|
117
|
746
|
897
|
176
|
14
|
18
|
21
|
|
32
|
200
|
210
|
210
|
120
|
752
|
903
|
176
|
16
|
19
|
22
|
|
40
|
220
|
230
|
235
|
139
|
791
|
942
|
176
|
18
|
28
|
32
|
|
50
|
250
|
255
|
265
|
144
|
801
|
952
|
176
|
22
|
32
|
36
|
|
65
|
275
|
285
|
295
|
188
|
930
|
1081
|
176
|
53
|
57
|
65
|
|
80
|
300
|
310
|
320
|
208
|
960
|
1111
|
176
|
62
|
67
|
77
|
|
100
|
350
|
355
|
370
|
220
|
984
|
1135
|
176
|
86
|
97
|
108
|
|
125
|
410
|
425
|
440
|
268
|
1167
|
1382
|
225
|
98
|
118
|
135
|
|
150
|
450
|
460
|
475
|
278
|
1187
|
1402
|
225
|
160
|
178
|
198
|
|
200
|
550
|
560
|
570
|
320
|
1271
|
1486
|
225
|
294
|
328
|
358
|
|
250
|
640
|
|
670
|
440
|
|
|
|
|
|
|
|