概述
电动衬氟球阀由DSR系列电动执行机构和衬氟球阀组成,由于该阀内腔及球体均采用高压注塑工艺,衬有耐腐蚀、耐老化的聚四氟乙丙烯(简称F46),故具有可靠的耐腐蚀性和密封性。执行机构能提供足够的转距,保证阀的可靠开、闭,并带有自动复位的离合器,失电时可自动复位。内置阀位反馈装置可实现阀位信号的传递和远程控制。
特点
1、 耐腐蚀:阀体内腔及理体均包衬2.5-3mm厚的F46,能耐酸、碱,耐强腐蚀。
2、采用软密封阀座,密封性能好。
3、体积小,重量轻,结构简单,安装维修方便。
4、流阻小,流通能力
主要零部件材料
型 式: 直通两分式铸造球阀
公称通径: DN15~200mm
公称压力: PN1.0、1.6MPa (ANSI 150Lb)
连接形式: 法兰连接 JB/T79-94(ANSI16.5)
材 料: ZG230-450衬F46、ZG1Cr18Ni9Ti衬F46
上 阀 盖: 与阀体一起铸造
填 料: 聚四氟乙烯
介质温度:-20~+150℃
阀芯形式: 球型阀芯
流量特性: 快开特性
阀 座: 聚四氟乙烯
材 料: ZG230-450衬F46、ZG1Cr18Ni9TI衬F46
阀芯转角: 90°
执行机构选配介绍
|
项目类型
|
DSR-05
|
DSR-10
|
DSR-20
|
DSR-40
|
DSR-60
|
DSR-100
|
DSR-200
|
|
输出力矩
|
50N.M
|
100 N.M
|
200 N.M
|
400 N.M
|
600 N.M
|
1000 N.M
|
2000 N.M
|
|
动作范围
|
0~90°
|
|
额定电流
|
0.15A
|
0.3A
|
0.45A
|
0.7A
|
0.7A
|
0.85A
|
0.85A
|
|
绝缘电阻
|
100M/DC500V
|
|
电源
|
AC110/220/380V DC24V
|
|
电机功率
|
8W/E
|
23 W/E
|
45 W/E
|
90 W/E
|
90 W/E
|
120 W/E
|
120 W/E
|
|
选配阀门
|
15-25
|
15-65
|
80-100
|
100-125
|
125-150
|
150-200
|
200-250
|
|
执行器重量
|
2.6Kg
|
4.2 Kg
|
7.9 Kg
|
8.7 Kg
|
9 Kg
|
14.7 Kg
|
15 Kg
|
所配阀门压力为1.6MPa
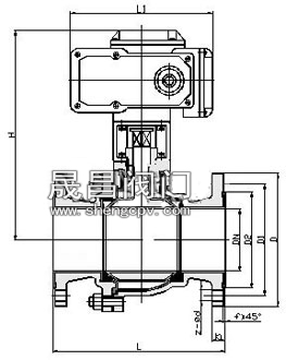
外形尺寸

|
公称通径
|
标准值
|
参考值
|
|
DN(mm)
|
NPS(inch)
|
L
|
D
|
D1
|
D2
|
f
|
b
|
Z-¢d
|
L1
|
H
|
|
PN1.6(MPa)
|
|
15
|
1/2
|
140/130
|
95
|
65
|
45
|
2
|
14
|
4-¢14
|
231
|
350
|
|
20
|
3/4
|
140/130
|
105
|
75
|
55
|
2
|
16
|
4-¢14
|
231
|
370
|
|
25
|
1
|
150/1340
|
115
|
85
|
65
|
2
|
16
|
4-¢14
|
231
|
375
|
|
32
|
11/4
|
165
|
135
|
100
|
78
|
2
|
18
|
4-¢18
|
231
|
385
|
|
40
|
11/2
|
180/165
|
145
|
110
|
85
|
3
|
18
|
4-¢18
|
231
|
390
|
|
50
|
2
|
200/203
|
160
|
125
|
100
|
3
|
20
|
4-¢18
|
231
|
435
|
|
65
|
21/2
|
220/222
|
180
|
145
|
120
|
3
|
20
|
4-¢18
|
261
|
460
|
|
80
|
3
|
250/241
|
195
|
160
|
135
|
3
|
22
|
4-¢18
|
261
|
465
|
|
100
|
4
|
280/305
|
215
|
180
|
155
|
3
|
24
|
8-¢18
|
285
|
612
|
|
125
|
5
|
320/356
|
245
|
210
|
185
|
3
|
26
|
8-¢18
|
285
|
625
|
|
150
|
6
|
360/394
|
280
|
240
|
210
|
3
|
28
|
8-¢23
|
325
|
700
|
|
200
|
8
|
457
|
335
|
295
|
265
|
3
|
30
|
8-¢23
|
325
|
740
|
|