结构特点和应用范围
ZDRR型电动O型切断球阀,是由电子式角行程电动执行机构3610R或3410R系列与球阀调节机构组成。具有结构简,切换迅速、流通能力大,零泄漏等特点,适用于高粘度、含纤维、固体颗粒流体的场合,广泛应用于石油化工,冶金、轻工等工业自控领域对气体、液体输送管道中介质的切断或流通。
执行标准
1、设计与制造:GB12237-89、API608、API 6D、JPI 7S-48、BS5351、DIN3357。
2、法兰尺寸:JB/T74~90(JB74~90)、GB9112~9131、HGJ44~76、SH3406、ANSI B16.5、JIS B2212~2214、NF E29-211、DIN2543。
3、结构长度:GB12221-89、ANSI B16.10、JIS B2002、NF E29-305、DIN3202。
4、检验主试验:JB/T 9092、API 598。
技术参数和性能指标
角行程电动执行机构主要技术参数
球阀调节机构主要技术参数
| 公称通径 mm |
15 |
20 |
25 |
32 |
40 |
50 |
80 |
100 |
| 额定流量系数Kv |
20 |
38 |
72 |
110 |
170 |
270 |
510 |
940 |
| 公称压力 MPa |
1.0;1.6;6.4 |
| 额定转角 ° |
0~90 |
| 流量特性 |
快开 |
| 介质温度 ℃ |
-20~120 |
| 阀体材质 |
HT200 ;ZG230-450 ;ZG1Cr18Ni9Ti;ZG0Cr18Ni12Mo2Ti |
| 球体材质 |
1Cr18Ni9;0Cr18Ni12Mo2Ti |
| 配执行机构型号 |
PN10、16 |
361RSA-05
341RSA-05 |
361RS(X)B-10
341RS(X)B-10 |
361RSC-30
341RSC-30 |
| PN64 |
361RS(X)B-10
341RS(X)B-10 |
361RSC-30
341RSC-30 |
361RSD-150
341RSD-150 |
注:1.根据现场使用条件,可配用防爆型执行机构。
2.可为用户提供GB、ANSI、JPI、JIS、DIN等国外法兰标准产品,其法兰距按用户需要确定。
| 类别 |
型 号 |
输出力矩 N.m |
动作时间 S/90° |
技术参数 |
| 普通型 |
361RSA-05
341RSA-05
|
50 |
17 |
电 源:220±10%Va.c.50Hz
驱动电机:交流可逆电机
输入信号:1-5V d.c.
4-20mA d.c.(信号线用屏蔽线)
开度信号:4-20mA d.c.
保护等级:相当IP55
防爆标志:ExdⅡBT4 |
361RSB-10
341RSB-10
|
100 |
18 |
361RSC-30
341RSC-30 |
300 |
24 |
361RSD-150
341RSD-150 |
1500 |
42 |
| 防爆型 |
361RXB-10
341RXB-10 |
100 |
18 |
性能指示
泄漏量:完全切断严密不漏(试验介质为水)。
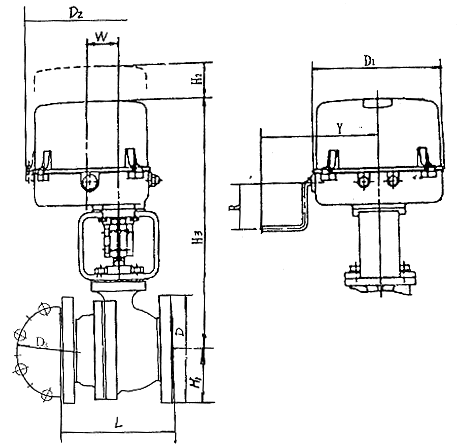
外形尺寸
PN16电动O型切断球阀外形尺寸 mm
| 公称通径 |
L |
D |
H1 |
H2 |
H3 |
D3 |
D1 |
R |
Y |
D2 |
W |
| 15 |
112 |
95 |
48.5 |
120 |
322 |
65 |
225 |
80 |
200 |
260 |
56 |
| 20 |
120 |
105 |
51.5 |
120 |
325 |
75 |
225 |
80 |
200 |
260 |
56 |
| 25 |
128 |
115 |
55 |
120 |
333 |
85 |
225 |
80 |
200 |
260 |
56 |
| 32 |
150 |
135 |
67.5 |
155 |
427 |
100 |
255 |
160 |
225 |
290 |
68 |
| 40 |
170 |
145 |
72.5 |
155 |
448 |
110 |
255 |
160 |
225 |
290 |
68 |
| 50 |
180 |
160 |
72.5 |
155 |
456 |
125 |
255 |
160 |
225 |
290 |
68 |
| 80 |
200 |
195 |
100 |
165 |
535 |
160 |
335 |
160 |
260 |
380 |
80 |
| 100 |
230 |
215 |
110 |
165 |
568 |
180 |
335 |
160 |
260 |
380 |
80 |
| 125 |
356 |
245 |
152 |
165 |
635 |
210 |
335 |
320 |
260 |
380 |
80 |
| 150 |
394 |
280 |
170 |
165 |
700 |
240 |
335 |
320 |
260 |
380 |
80 |
| 200 |
457 |
335 |
300 |
120 |
860 |
295 |
470 |
400 |
365 |
520 |
65 |
PN64电动O型切断球阀外形尺寸 mm
| 公称通径 |
L |
D |
H1 |
H2 |
H3 |
D3 |
D1 |
R |
Y |
D2 |
W |
| 20 |
145 |
125 |
37.5 |
155 |
366 |
90 |
255 |
160 |
225 |
290 |
68 |
| 25 |
156 |
135 |
39 |
155 |
366.5 |
100 |
255 |
160 |
225 |
290 |
68 |
| 40 |
200 |
165 |
87.5 |
165 |
506 |
125 |
335 |
160 |
260 |
380 |
80 |
| 50 |
215 |
175 |
87.5 |
165 |
516 |
135 |
335 |
160 |
260 |
380 |
80 |
| 80 |
260 |
210 |
112.5 |
120 |
670 |
170 |
520 |
200 |
365 |
520 |
65 |
| 100 |
300 |
250 |
133 |
120 |
698 |
200 |
520 |
200 |
365 |
520 |
65 |
| 125 |
381 |
295 |
200 |
120 |
710 |
240 |
470 |
400 |
365 |
520 |
65 |
| 150 |
403 |
340 |
270 |
120 |
730 |
280 |
470 |
400 |
365 |
520 |
65 |

|